West Lawrence private school files plans for significant expansion
Bishop Seabury Academy has filed plans to fill in the swimming pool on its Lawrence campus. The rest of us shouldn’t do anything drastic like selling our Speedos or stop using hip phrases from “Baywatch.” None of this is a sign that summer is canceled. Rather, the school is planning a significant building expansion.
The private school has filed plans with Lawrence City Hall that eventually would allow it to add up to 30,000 square feet of new buildings at its campus at 4120 Clinton Parkway in west Lawrence. If you have forgotten, that is the former location of the Alvamar Country Club’s tennis and swimming facility. That helps explain why a private prep school has an outdoor swimming pool.
Even though Bishop Seabury has been at the location since 2003, Alvamar has continued to use the swimming pool and outdoor tennis courts for its members. But as Alvamar has transformed into the Jayhawk Club, that has changed. The Jayhawk Club includes an expansive outdoor pool at its main clubhouse area.
Bishop Seabury is jumping at the chance to cover the old pool area with a mix of new classrooms, office space and a large commons area. Jennifer Godar, development director for Bishop Seabury, said crowding is becoming a problem in the school.
“We have outgrown the space that we have,” Godar said. “The biggest challenge we have is several teachers sharing classrooms. That gets difficult.”
The school, which serves sixth through 12th grades, has about 205 students currently, Godar said. The plans filed with the city are based on accommodating about 250 students. But the big caveat with that number is timing. The plans filed with City Hall reflect a long-term vision for the campus. In other words, not everything shown on the plans would be included in a phase-one construction project, Godar said.
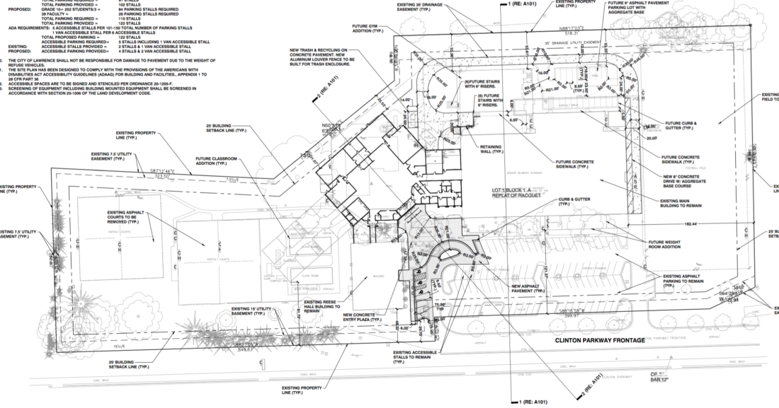
Below is an image of the site plan filed with City Hall. The area in the center of the site plan is where most of the phase-one work is shown, Godar said. The area in dark gray represents a new exterior entry, including a significant concrete plaza area. The part of the plan just north and west of the gray area — it is shown in darker lines — is the proposed classroom and commons area space that would be constructed in the first phase. If you look closely, you can see another wing of future classrooms just to the west of that area. Those classrooms aren’t planned to be built as part of the first phase.

photo by: Chad Lawhorn
A proposed site plan for Bishop Seabury's campus in west Lawrence. Plans by SK Design Group, courtesy city of Lawrence.
When the phase-one project may begin is a bit uncertain, Godar said. As a private school, Bishop Seabury must still raise the money. Godar didn’t provide a dollar estimate on how much the school thinks it will need to raise.
The project also must receive city approval. The property’s zoning and use requires the project to receive a special use permit from the Lawrence City Commission. The Lawrence-Douglas County Planning Commission will first hear the request for the special use permit. It is scheduled to do so at its April 23 meeting.
A few other details about the proposed project: In addition to removing the swimming pool, the project also will remove the six outdoor tennis courts that have been used by Alvamar members. Current plans call for that area to become green space. The project also will allow Bishop Seabury to discontinue the use of temporary classrooms that have been set up outside the main building for nearly five years, Godar said.
Bishop Seabury has seen consistent growth in its enrollment since it opened in 1997. The school has classroom sizes of about 15 students per teacher, which has been a selling point for the school but also has put pressure on space, Godar said.
“We are very fortunate to have great schools in Lawrence, both public and private,” Godar said. “But it is nice to have the option for families that believe their students will flourish better in smaller classes.”

photo by: Chad Lawhorn
A proposed site plan for Bishop Seabury's campus in west Lawrence. Plans by SK Design Group, courtesy city of Lawrence.







