Plans filed for student apartment complex with more than 700 bedrooms near south Iowa Street
photo by: Nick Krug
Plans have been filed to build a 700-bedroom student apartment complex on this undeveloped piece of land directly east of Walmart at 33rd and Iowa streets, pictured Thursday, Dec. 14, 2017. The project, which is being called The Collegiate at Lawrence would sit on the 27-acre site, which is bordered by the South Lawrence Trafficway, at left and bottom, and Michigan Street, at right.
Get ready for the next boom in student apartment construction in Lawrence. We reported last month that plans have been filed at City Hall for an approximately 500-bedroom student apartment complex near Clinton Parkway and Crestline Drive. Now, plans for a more than 700-bedroom student apartment complex have been filed for a vacant piece of ground near south Iowa Street.
An Indiana-based company has filed plans to build a mix of town homes and duplexes — 98 buildings in all — on a large piece of vacant ground behind the Walmart at 33rd and Iowa streets. The project would be called The Collegiate at Lawrence, and definitely would be geared toward student housing.
“The request is being presented to fulfill the ever-increasing need for off-campus student housing for the University of Kansas,” according to the application filed at City Hall by Lawrence-based CFS Engineers, which is serving as a local agent for the Indiana development group.
The project would be a big one. The proposed site is 27 acres. It stretches from just south of The Connection at Lawrence — another student housing complex — all the way to the South Lawrence Trafficway. In some ways, thank the SLT project for spurring this development. The site became more accessible after a new street — Michigan Street — was built south of 31st Street as part of the SLT project.

photo by: Nick Krug
Plans have been filed to build a 700-bedroom student apartment complex on this undeveloped piece of land directly east of Walmart at 33rd and Iowa streets, pictured Thursday, Dec. 14, 2017. The project, which is being called The Collegiate at Lawrence would sit on the 27-acre site, which is bordered by the South Lawrence Trafficway, at left and bottom, and Michigan Street, at right.
Plans call for the following types of apartments:
• 126 four-bedroom units
• 30 three-bedroom units
• 76 two-bedroom units
• 38 one-bedroom units
That’s a total of 784 bedrooms that would be added to the Lawrence rental market. Plans call for the development to have several amenities too. They include a clubhouse and pool area, a disc golf course, a sand volleyball pit and a soccer field.
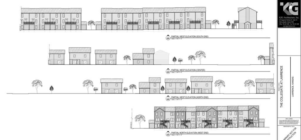
The plans show what a few of the buildings would look like. The plans also show a general layout of the complex.

Renderings by KJG Architecture. Courtesy: City of Lawrence.

Courtesy: CFS Engineers/City of Lawrence

Courtesy: CFS Engineers/City of Lawrence
As for the company behind all of this, Trinitas Ventures LLC out of Lafayette Ind. is listed as the developer. According to its website, the company has been in the student housing business since 2002, when it started building complexes to serve Purdue University. The company now owns or manages about 3,500 student housing beds but is expanding rapidly. The company has 5,500 student housing beds under construction for opening in 2018-2019.
The company has complexes in many of the major college communities across the country, including near the University of Alabama, University of Arkansas, University of Illinois, University of Indiana, University of Kentucky, University of Nebraska, University of North Carolina and others. This would be the company’s only property in Kansas.
At the moment, it looks like the project has most of the major approvals it needs to build in Lawrence. The vacant property already is zoned for apartment construction, which means the project won’t have to win zoning approval from the Planning Commission and the City Commission. It will have to win several approvals for site layout and other technical specifications from the planning department.
There’s also one other interesting fact about the project. There’s a group of people who probably are rooting for the project to succeed that you wouldn’t guess: teachers and state employees in Utah. The vacant piece of ground is actually owned by the investment fund of the Utah Retirement System. That’s perhaps more common than you think. While we are still a small town at heart, there are investment funds from all over the country that own commercial property in Lawrence.







